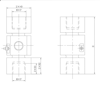
|
量程 |
尺寸mm |
||||
|
t |
H |
H1 |
H2 |
ΦD |
MXP |
|
20 |
185.0 |
38.0 |
57.0 |
78.0 |
M42x3 |
|
30~40 |
225.0 |
50.0 |
77.0 |
105.0 |
M56x3 |

在線訂購(gòu)